En Venta
DEPARTAMENTO EN POZO BONJO 11 2 AMB CONTRAFRENTE COCHERA PERLA NORTE MARZO 2027
Código: 184257

Juan Angel Peña 3762, B7600INB Mar del Plata, Provincia de Buenos Aires, Argentina, Mar Del Plata, Buenos Aires, Argentina.

USD160.000

Departamento
Compartir esta Propiedad

Descripción de la Propiedad

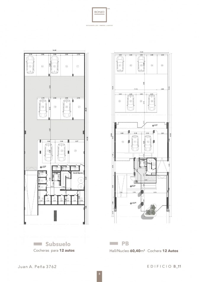
EDIFICIO BONJO 11 LA PERLA NORTE DEPARTAMENTO 2 AMBIENTES UBICADO EN PISO 3 DISPOSICIÓN CONTRAFRENTE. CUENTA CON COCHERA DESCUBIERTA.
FECHA DE ENTREGA MARZO.2027

Nuevo concepto en Construcción. Logrando crear espacios con mucha estética, incorporando materiales de calidad, sumándose a la tendencia de lugares abiertos y en esta oportunidad con vistas espectaculares. Las unidades que miran al frente, disfrutan de una vista lateral al mar, mientras que las unidades que miran al contrafrente ofrecen vistas al barrio La Perla. El Edificio está situado en un punto estratégico de la ciudad. Próximo a comercios, principales playas, zona de esparcimiento y lugares gastronómicos. Situado a:
50 metros del paseo costero y del mar.
350 metros del Museo Mar.
700 metros de la Avenida Constitución.
A 15 minutos del centro de la ciudad.

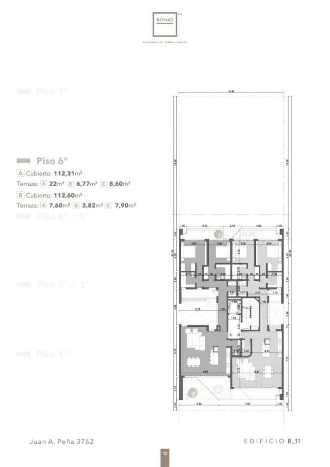
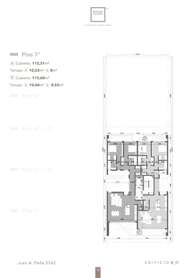
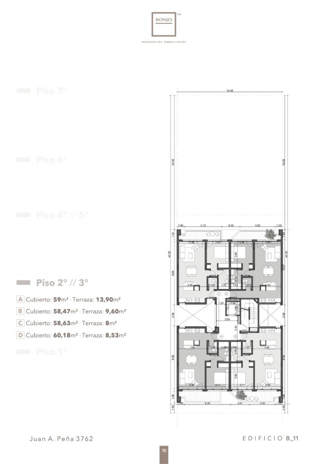
DETALLES DE LAS UNIDADES:
Las unidades contarán con terraza/balcón al frente y al contrafrente.
Sol por la mañana en las unidades al frente.
Sol por la tarde en las unidades al contrafrente.
Todas las unidades contarán con toilette de recepción y baño en suite.
Doble patio interno.
NIVELES DE TERMINACIÓN
· Unidades Funcionales espesor 20 centímetros. Resto 15 cm.
· Revoques interiores realizados en yeso proyectado. Terminación al látex.
· Cielorrasos “suspendidos” de yeso en la totalidad de los ambientes.
· Carpintería exterior de PVC de grandes dimensiones, con doble vidriado hermético y cámara de aire (DVH).-
· Puertas interiores de madera (marco y hoja) con herrajes de acero inoxidable.
· Zócalos y contramarcos interiores en madera laqueada
· Pisos y revestimientos: porcelanato grandes piezas, con diseño y tonalidades modernas.
· Placas totalmente terminadas con interiores de diseño exclusivo. Frentes corredizos con herrajes aluminio.
· INSTALACIÓN SANITARIA
· Sistema central para la provisión de agua caliente para el uso sanitario y calefacción. Bajo consumo.
· Calefacción por piso radiante individual comandada por termostato de ambiente.
· Refrigeración (aire acondicionado): preinstalación prevista (caño de cobre, alimentación eléctrica y desagües) en todas las unidades para la colocación de equipos.
· BAÑOS
· Artefactos sanitarios marca FERRUM, modelo BARI, o calidad similar.
· Grifería marca FV, con cierre cerámico, modelos Libby, Melincué o calidad similar.
· Caja de ducha con mampara de vidrio.
· Vanitorio de diseño exclusivo.
· COCINA:
· Muebles bajo mesada y alacenas en melanina con cantos de PVC y protección hidráulica en cierres.
· Mesada en cuarzo 20 mm de espesor
Pileta en acero inoxidable (doble bacha) y grifería monocomando con cierre cerámico marca FV
Horno eléctrico en acero inoxidable y anafe vitrocerámico de última generación.
Campana en acero inoxidable con ventilación natural.

CONSULTANOS PARA MAS INFORMACIÓN!!

Mas detalles
  • En construcción
  • Balcon
  • Portones eléctricos
  • Seguridad 24hs.
  • Calefacción Central / Piso Radiante / Radiadores
  • Luminoso
  • Quincho
  • Cerca de Escuelas
  • Servicios Compartidos
  • Alumbrado publico
  • Asfalto
  • Agua Corriente
  • Cloacas
  • Electricidad
  • Red Gas Natural
  • Muros Perimetrales
  • TV por cable
  • Internet / Wifi
  • Facilidades movilidad reducida
  • Ascensor